Overhill Drive, Brighton, BN1 Overhill Drive, Brighton, BN1

3 bedroom Land (Residential) for sale in Overhill Drive, Brighton, BN1

£700,000

  • 3 bedroom

Key Features

  • THREE BEDROOM SEMI-DETACHED HOUSE
  • DEVELOPMENT OPORTUNITY
  • PLANNING PERMISSION TO BUILD 3 BEDROOM DETACHED HOUSE
  • OFF-STREET PARKING AND GARAGE
  • SIZEABLE GARDEN
  • POPULAR RESIDENTIAL AREA NORTH OF BRIGHTON
  • EASY ACCESS TO A27
  • GOOD CHOICE OF LOCAL AMENITIES
  • PLANNING REFERENCE - BH2025/01589

Description

Located in the established residential area of Patcham, with convenient access to central Brighton and the South Downs, this site presents an excellent development opportunity. Planning Reference - BH2025/01589

The existing property is a three-bedroom 1930s Art Deco semi-detached house, set on a generous plot with off-street parking, garage and a sizeable rear garden with a westerly aspect. The house requires full refurbishment throughout.

Of particular interest to developers, planning permission has been granted for the construction of a separate three-bedroom detached dwelling within the plot, complete with private garden and off-street parking. Architect drawings are available.

This is a rare opportunity to acquire a site with consent in place, offering clear potential for redevelopment or enhancement in a well-regarded residential location.

Please view the Brighton & Hove Planning Application website - https://publicaccess.brighton-hove.gov.uk/online-applications/simpleSearchResults.do?action=firstPage

Planning Reference - BH2025/01589


Location


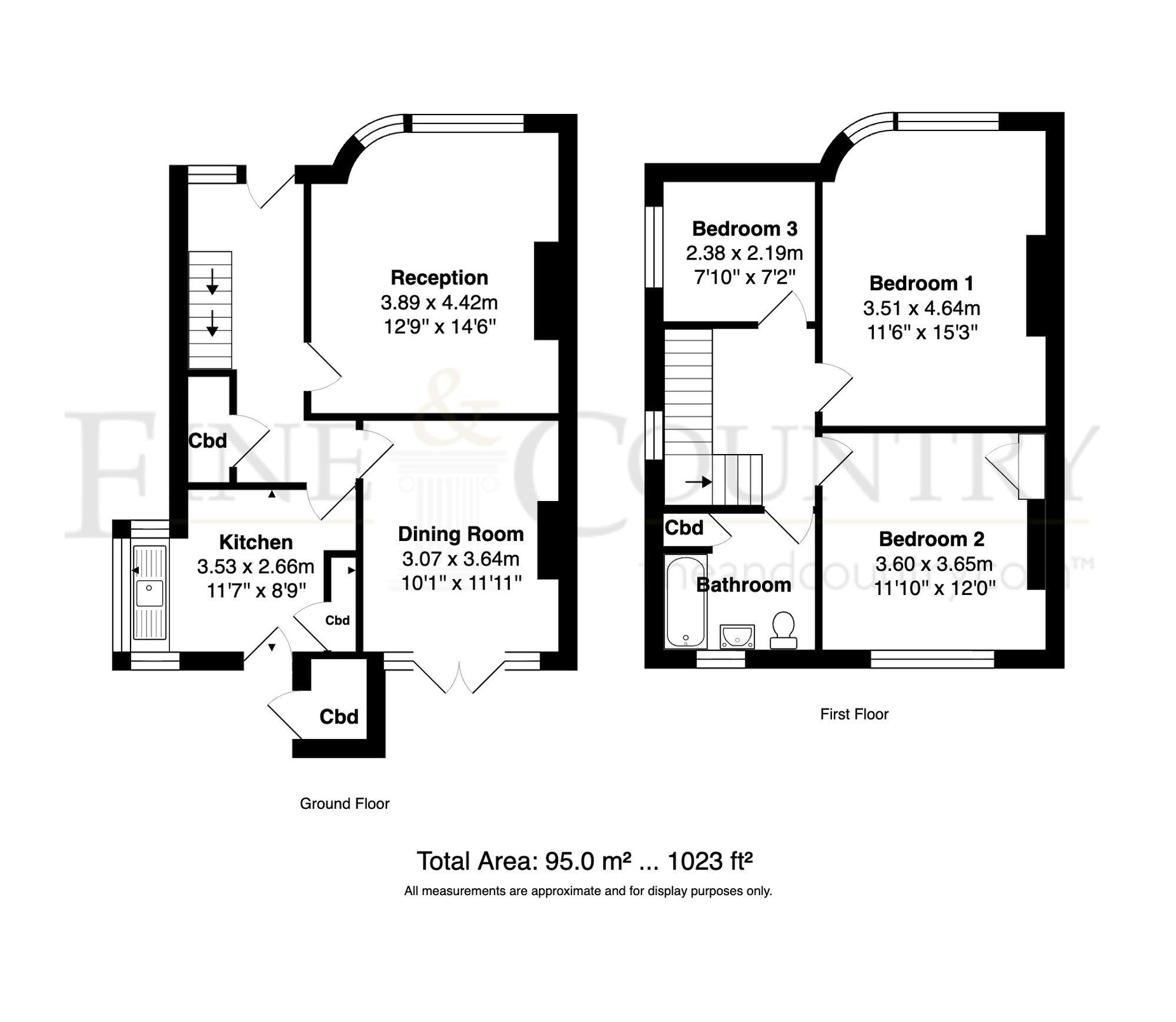
Floorplan

Floorplan

EPC

EPC for Overhill Drive, Brighton, BN1

Similar Properties

Redhill Drive, Brighton, BN1
For Sale

Redhill Drive, Brighton, BN1

3 Bed House For Sale
£775,000
Buckingham Road, Brighton, BN1
For Sale

Buckingham Road, Brighton, BN1

2 Bed Flat For Sale
Guide Price £375,000
Millers Road, Brighton, BN1
For Sale

Millers Road, Brighton, BN1

2 Bed Maisonette For Sale
Guide Price £325,000