George Street, Brighton, BN2 George Street, Brighton, BN2

5 bedroom House to rent in George Street, Brighton, BN2

£2,900 PCM

  • 5 bedroom

Key Features

  • Available Now
  • Furnished
  • Pets Considered
  • Parking zone - C ( Check council website )
  • Tenancy Length- 12 months
  • EPC - D
  • Council Tax Band - E ( £3,001.52 until March 2026 )
  • Holding Deposit -
  • Security Deposit -

Description

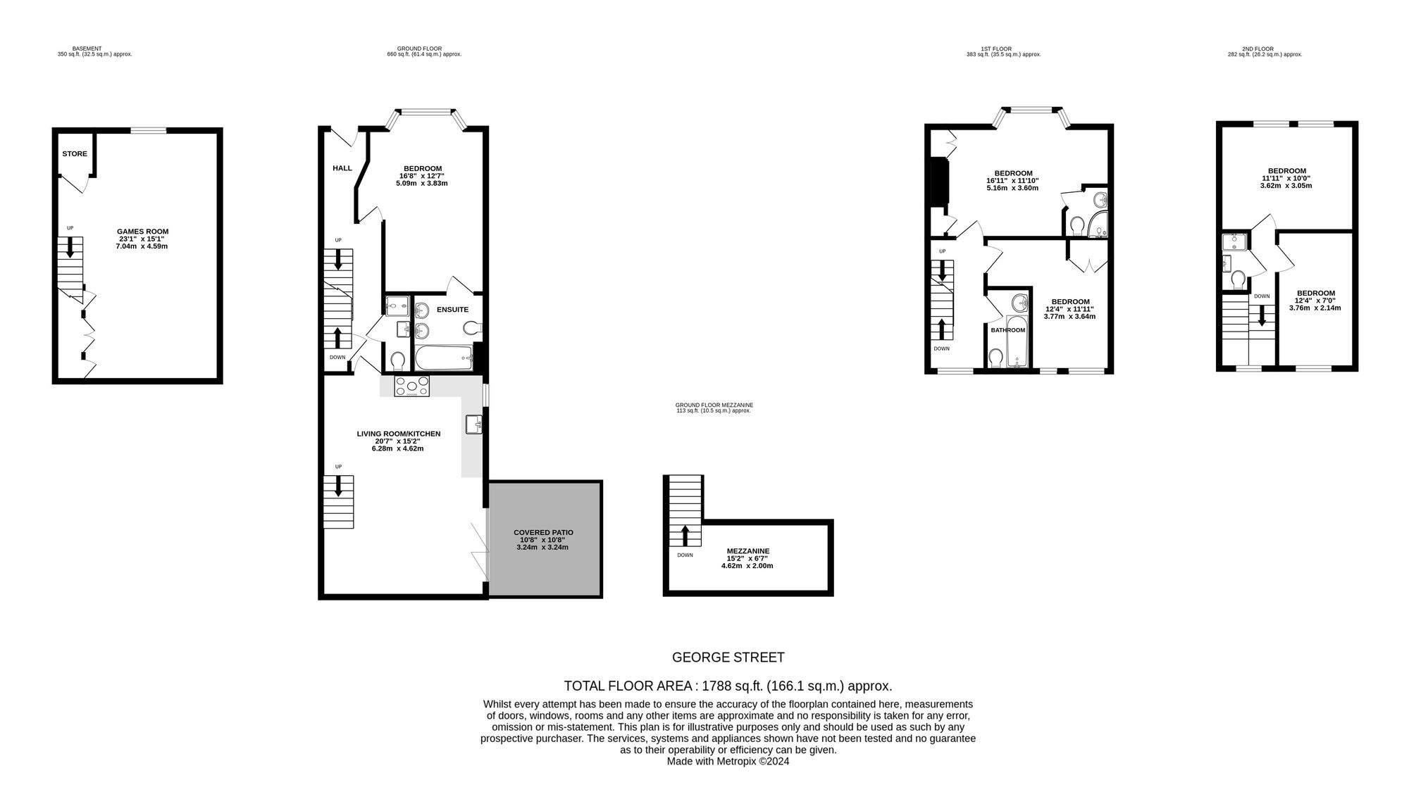
SPACIOUS & BEAUTIFULLY PRESENTED FIVE BEDROOM FOUR STOREY HOUSE WITH OUTSIDE TERRACE - FIVE BATHROOMS (TWO EN-SUITES) - LOCATED IN THE HEART OF KEMP TOWN - IDEAL FOR SHARERS (HMO LICENSED)

The property is laid out over four floors. On the basement level is a spacious dining room/office with integrated fridge. On the ground floor level is a double bedroom with en-suite bathroom, further separate shower room, good sized lounge with corner sofa with mezzanine and seating area and doors leading to Moroccan styled terrace with seating, modern open plan kitchen to include appliances. On the first floor is a bathroom with shower and two double bedrooms one with an en-suite shower room. On the top floor are two double bedrooms and a further shower room. Bunk beds will be removed and replaced with brand new double beds.

Located in the very heart of Kemp Town Village, only moments away from the seafront, the bustling café culture of St George’s Road is right on your doorstep.

From Artisan Coffee House to the vintage antique shops, when it comes to shops, bars and restaurants there’s no shortage of choice. The amenities of St. James’s Street and Edward Street are all close at hand. The ever-popular Busby and Wilds gastro pub offers a family and dog friendly atmosphere, while the centre of Brighton with its high street stores and famous Lanes are all within easy reach.

Plenty of bus services provide access to all parts of the city as well as nearby outlying villages and up to Devil’s Dyke. Brighton train station is within walking distance approximately only a mile and half away providing regular mainline links for commuters.

Mobile Phone Coverage & Broadband– Prospective tenants should check the Ofcom Checker website
Planning Permissions – Please check the local authority website for any planning permissions that may affect this property or properties close by.
This is information has been provided by the landlord.

Tenant Information

Right to Rent - Sawyer & Co cannot start processing an application until the Right to Rent check has been completed (passport min’ requirement). Client Money Protection - Sawyer & Co are part of a client money protection scheme. Our Client Money Protection (CMP) Scheme is a compensation scheme run by the National Federation of Property Professionals (NFoPP) which provides compensation to landlords, tenants and other clients should an agent misappropriate their rent, deposit or other client funds. Independent Redress Provided by The Property Ombudsman - Sawyer & Co are part of The Property Ombudsman Scheme (TPOS). This scheme has been providing consumers and property agents with an alternative dispute resolution service since 1990.

The Ombudsman’s resolutions are designed to achieve a full and final settlement of the dispute and all claims made by either party. The Ombudsman can, where appropriate, make compensatory awards in individual cases up to a maximum of £25,000 for actual and quantifiable loss and/or for aggravation, distress and/or inconvenience caused by the actions of an agent.



Location


Floorplan

Floorplan

EPC

EPC for George Street, Brighton, BN2

Similar Properties

Marine Parade, Brighton, BN2
Let Agreed

Marine Parade, Brighton, BN2

1 Bed Flat Let Agreed
£1,350 PCM
Slinfold Close, Brighton, BN2
Let Agreed

Slinfold Close, Brighton, BN2

3 Bed House Let Agreed
£1,750 PCM
Sussex Square, Brighton, BN2
To Rent

Sussex Square, Brighton, BN2

3 Bed Property To Rent
£2,500 PCM